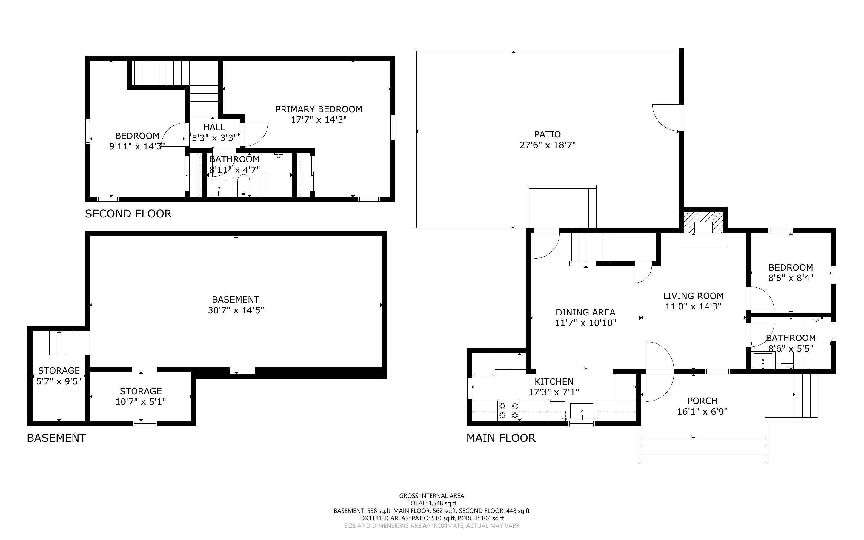
In Provincetown's West End, don't miss this 3 bedroom, 2 full bath, Cape style home on the corner of Kings Way and Fritz's Way! A full renovation in 2020, this home offers modern amenities such as refinished hardwood floors, updated kitchen and baths, and open concept living. On the main floor, you'll find the first bedroom and full bath off the Living area. The living area has a fireplace for the crisp fall and winter nights. The dining and well equipped kitchen, with washer and dryer, are at the opposite end of the Living Room. The second floor has two nice sized bedrooms with a full hall bath between. Outside, you'll find a gorgeous private brick paved patio and lush grass lawn served by a well irrigation system. The charming covered porch is great to entertain on, have quiet moments and enjoy beautiful summer nights. There's even onsite parking for 3 cars easily - a rare find in town. With exterior access to the basement, you have an opportunity for future development of additional livable space. Don't miss your chance to be within an easy strolling distance to galleries, restaurants, the grocery and beaches. Live here full time or share as a great vacation rental investment.

Listing Tools

Property Details of 7 Kings Way

Property Details

Interior Features

Exterior Features

Utilities and Appliances

Map Location

Listed by Shane Rankin of Rankin Realty (shanerankin@icloud.com)

broker reciprocity The data relating to real estate for sale on this site comes from the Broker Reciprocity (BR) of the Cape Cod & Islands Multiple Listing Service, Inc. Summary or thumbnail real estate listings held by brokerage firms other than Buyer Brokers of Cape Cod are marked with the BR Logo and detailed information about them includes the name of the listing broker. Neither the listing broker nor Buyer Brokers of Cape Cod shall be responsible for any typographical errors, misinformation, or misprints and shall be held totally harmless.

This site was last updated December 10, 2025 8:51 AM EST. All properties are subject to prior sale, changes, or withdrawal.

Buyer Brokers of Cape Cod has chosen to display only certain towns and/or types or styles of properties. This site may not show all listings that are available through the Cape Cod & Islands Multiple Listing Service, Inc.

Hi there! How can we help you?

Contact us using the form below or give us a call.

Send Us A Message:

I agree to receive marketing and customer service calls and text messages from Buyer Brokers of Cape Cod. To opt out, you can reply 'stop' at any time or click the unsubscribe link in the emails. Consent is not a condition of purchase. Msg/data rates may apply. Msg frequency varies. Privacy Policy.

Do not fill in this field:

This site is protected by reCAPTCHA and the Google Privacy Policy and Terms of Service apply.

Hi there! How can we help you?

Contact us using the form below or give us a call.

Send Us A Message:

Do not fill in this field:

This site is protected by reCAPTCHA and the Google Privacy Policy and Terms of Service apply.

Hi there! How can we help you?

Contact us using the form below or give us a call.

Send Us A Message:

Do not fill in this field:

This site is protected by reCAPTCHA and the Google Privacy Policy and Terms of Service apply.

Do not fill in this field:

This site is protected by reCAPTCHA and the Google Privacy Policy and Terms of Service apply.

Do not fill in this field:

This site is protected by reCAPTCHA and the Google Privacy Policy and Terms of Service apply.

Do not fill in this field:

This site is protected by reCAPTCHA and the Google Privacy Policy and Terms of Service apply.

$

Do not fill in this field:

This site is protected by reCAPTCHA and the Google Privacy Policy and Terms of Service apply.